
上海业主在买房时遇到了一套好房子,欣喜之余就发过来让我评价一下,独乐乐不如众乐乐嘛。
我觉得吧,在我近期点评过的所有大平层中,本户型确实可以位列前三,具体点评如下。
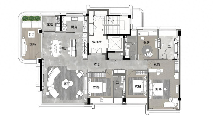
首先,我坚定认为真正的顶奢大平层,就应该是一层一户,那些跟邻居共享楼层的房子肯定是不能被称为豪宅的,哪怕是独立的电梯入户也不行。
反观本户型,360°无敌视野,俯瞰芸芸众生的既视感跃然纸上!

其次,我知道你们会说这套大平层的房间只有四个,太少。可现在的问题是,哪怕是地主家,不也就两个娃么?三个卧室一个书房,怎么可能不够用?
不对啊,如果只有三个卧室的话,至少两个次卧你得放下一张双人床、一个书桌才对吧?面积呢?被狗吃了么?开发商你行不行啊。
再次,厨房是舒服的,餐厅是舒服的,这个客厅感觉有点大了啊,你层高才3米1,搞那么大的竖厅会不会有点怪啊。
再说了,舒服的大客厅,肯定是面宽小一些,进深大一些才对。采光充足的前提下,窗户一多一大就要影响私密性了。
另外,业主说这套大平层的唯一缺点就是没有保姆房。这我也要反驳一下:大宅,自家人住就行了,阿姨的话另租房子嘛就好咧。
最后,不知你们发现没?堂堂225㎡级的大平层户型,主卧连个独立的衣帽间都没有,这好像有点说不过去吧?
其它就没什么好多说的了,这套大平层也就是看着舒服,一番点评下来,倒是能进倒数前三的排名。打个80分一般吧,最宜二孩家庭改善自住。
要是还没买房,建议考虑周边170㎡左右的四室两卫户型吧。这套大平层真的是差点意思,大家觉得呢?
富灯网提示:文章来自网络,不代表本站观点。